Cardigan Cottage

The Cardigan boasts a new, distinctive exterior, and the interior layout is individually created. However the Cardigan park home is still able to evoke memories of the cottages that are seen throughout the glorious British countryside.

park-home-badminton

Raglan

A great new park home from quality manufacturer. The Stately Albion Raglan is centred around a spectacular kitchen complete with centre island. This one is definitely worth a look!

tredegar-single-park-home
Similar HOMES

Hibbs Park Homes Sales Office

Wellow Road

Ollerton

Newark

Nottinghamshire

NG22 9AP

Tel: 01623 860 040

Mob: 07971 803 992

Email: info@hibbsparkhomes.com


Call Today to arrange an appointment:
Home Our Parks Homes for Sale Your Investment News FAQ's Contact Us

Fairfield Park

Wellow Road

Ollerton

Newark

Nottinghamshire

NG22 9FB


Creating homes Community Building dreams

Fairholme Park

Wellow Road

Ollerton

Newark

Nottinghamshire

NG22 9AS


01623 860 040
Hibbs Park Homes

TWO LUXURY RESIDENTIAL

HIBBS PARK HOMES ESTATE

ONE COMMUNITY ATMOSPHERE

Hibbs Park Homes - Park Home estates in Nottinghamshire
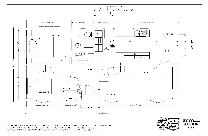
option 1- 40ft x 20ftgoodwood-40x20.pdf

Introduced at the National Park and Holiday Homes Show, Newbury 2015, the stylishly revamped Goodwood park home impressed all who saw it.


A long-established design, the Goodwood has received an impressive facelift, both freshening its looks and bringing it in line with the clean and modern design of the Stately Albion brand.


Featuring compound bay windows and patio doors a walk-in bay, and complementary feature cladding. This spacious and well-appointed home is also friendly on your budget, it’s stylish and exceptionally well-equipped kitchen being fully loaded with the latest appliances.


With hardwood furniture and a spacious walk-in wardrobe to the master bedroom, the Goodwood continues to impress with its attention to detail and full use of available space.



Stately Albion Goodwood Floor Plans Contact Us
Now Sold